Front elevation 1.jpg
Front elevation 4.jpg
Front elevation 3.jpg
Front elevation 2.jpg
Interior-shots-1.jpg
Interior-shots-4.jpg
Interior-shots-2.jpg
Interior-shots-5.jpg
Interior-shots-3.jpg
 Ground Floor
 First Floor
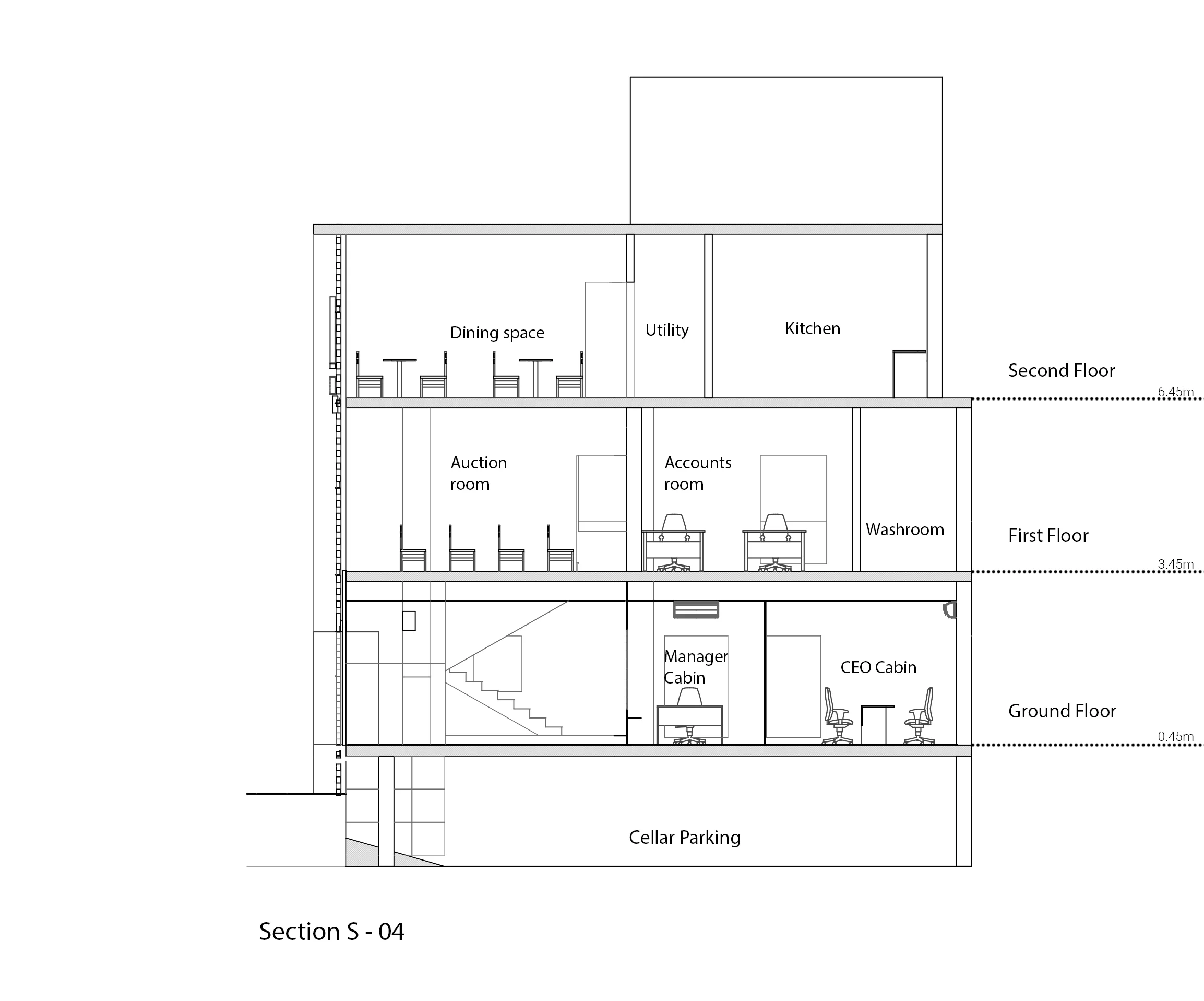
S-04 Section.jpg
Facade-Detail.jpg
Elevation GIF.gif
prev / next